Foto leveres af Google Street View og kan være upræcist:
Kontor til leje, Thisted, Jernbanegade
Jernbanegade, 7700 Thisted- Kontor til leje
- 100 - 200 m2
Jernbanegade, 7700 Thisted
- Kontor til leje
- 100 - 200 m2
Få mere info
Du linkes til en anden portal, som evt. kan kræve betaling eller oprettelse
Kontor til leje, Thisted, Jernbanegade
Kontor til leje i 7700 Thisted
Godt beliggende kontorlejemål i centrum af Thisted på hjørnet af Jernbanegade og Toldbodgade.
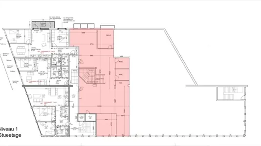
Kontorlejemålet kan udgøre fra 100 kvm til ca. 200 kvm beliggende på 2. sal. Gode muligheder for indretning efter eget ønske.
Lejemålet har bl.a. tidligere været anvendt til liberalt erhverv og kontor i almindelighed og kan fortsat benyttes til sådanne formål.
Der er adgang til lejemålet fra opgang i henholdsvis Jernbanegade og i Toldbodgade.
Der er fælles personalekøkken og toiletfaciliteter.
Der er elevator i ejendommen. Ligeledes ventilation og nye vinduer.
Thisted Rådhus er beliggende et par hundrede meter fra ejendommen – det samme er tilfældet med havnefronten. Ligeledes er Thisted Museum med stort grønt areal at finde overfor ejendommen. Føtex er også beliggende i ejendomskomplekset overfor ejendommen.
Med hensyn til parkering er der parkeringsfaciliteter til ejendommen med adgang fra Asylgade. Der kan indgås særskilt aftale om parkering.
Kontorlejemålet kan udgøre fra 100 kvm til ca. 200 kvm beliggende på 2. sal. Gode muligheder for indretning efter eget ønske.
Lejemålet har bl.a. tidligere været anvendt til liberalt erhverv og kontor i almindelighed og kan fortsat benyttes til sådanne formål.
Der er adgang til lejemålet fra opgang i henholdsvis Jernbanegade og i Toldbodgade.
Der er fælles personalekøkken og toiletfaciliteter.
Der er elevator i ejendommen. Ligeledes ventilation og nye vinduer.
Thisted Rådhus er beliggende et par hundrede meter fra ejendommen – det samme er tilfældet med havnefronten. Ligeledes er Thisted Museum med stort grønt areal at finde overfor ejendommen. Føtex er også beliggende i ejendomskomplekset overfor ejendommen.
Med hensyn til parkering er der parkeringsfaciliteter til ejendommen med adgang fra Asylgade. Der kan indgås særskilt aftale om parkering.
Information og data
Dette kontorlokale ligger på Jernbanegade i Thisted. Thisted har postnummeret 7700, og ligger i kommunen Thisted, som ligger i Region Nordjylland. Lokalet er i alt 200 m2.