Foto leveres af Google Street View og kan være upræcist:
Kontor til leje, Hellerup, Hellerupvej
Hellerupvej, 2900 Hellerup- Kontor til leje
- Ca. 130 m2
- Ca. 25.000 kr. per måned
Hellerupvej, 2900 Hellerup
- Kontor til leje
- Ca. 130 m2
- Ca. 25.000 kr. per måned
Få mere info
Du linkes til en anden portal, som evt. kan kræve betaling eller oprettelse
Kontor til leje, Hellerup, Hellerupvej
Fakta
- 248511
- Kontor
- 1.3.2026
- Ca. 130 m2
- Ca. 300.000 kr.
- Ca. 25.000 kr.
- Ca. 2.500 kr.
- 2
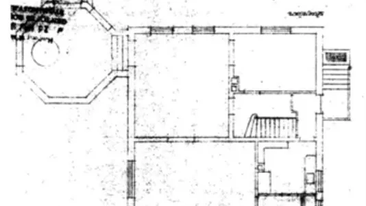
Kontorlokaler/klinik i villa centralt i Hellerup
Stueetage med erhvervsstatus i smuk ejendom fra 1897.
Lejemålet indeholder tre højloftede lokaler, en suite med stuk, samt stor opvarmet vinterstue, tekøkken, og toilet. Lokalerne har siden 1987 været benyttet til praktiserende lægeklinik, andet erhverv er muligt. Lokalerne fremstår hovedsageligt nyrenoverede, med nyslebne gulve og hvid vægmaling. Vil egne sig godt til liberalt erhverv eller klinik, showroom, el. lign. Brutto 146 m2, netto 130 m2.
Ledigt 1. marts 2026
Lejemålet indeholder tre højloftede lokaler, en suite med stuk, samt stor opvarmet vinterstue, tekøkken, og toilet. Lokalerne har siden 1987 været benyttet til praktiserende lægeklinik, andet erhverv er muligt. Lokalerne fremstår hovedsageligt nyrenoverede, med nyslebne gulve og hvid vægmaling. Vil egne sig godt til liberalt erhverv eller klinik, showroom, el. lign. Brutto 146 m2, netto 130 m2.
Ledigt 1. marts 2026
Information og data
Dette kontorlokale ligger på Hellerupvej i Hellerup. Hellerup har postnummeret 2900, og ligger i kommunen Gentofte, som ligger i Storkøbenhavn. Lokalet er i alt 130 m2. Lejepris: Ca. 300.000 kr. per år. Der medfølger 2 parkeringspladser til ejendommen.