Foto leveres af Google Street View og kan være upræcist:
    
Kontor til leje, Odense SV, Hvidkærvej 48
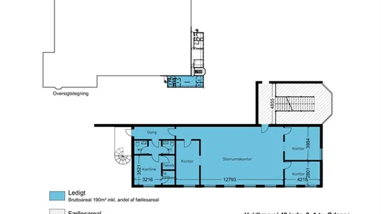
Hvidkærvej 48, 5250 Odense SV- Kontor til leje
 - 190 m2
 - 10.292 kr. per måned
 
            
                Hvidkærvej 48, 5250 Odense SV
                
            - Kontor til leje
 - 190 m2
 - 10.292 kr. per måned
 
            Kontakt udlejeren nu
            Du linkes til en anden portal, som evt. kan kræve betaling eller oprettelse
Kontor til leje, Odense SV, Hvidkærvej 48
Fakta
- 265989
 - Kontor
 - 190 m2
 - 123.500 kr.
 - 10.292 kr.
 - 650 kr.
 
                    KONTAKT UDLEJEREN NU
                    
            
        Du linkes til en anden portal, som evt. kan kræve betaling eller oprettelse
                Kontor til leje i 5250 Odense SV
            Lejemålet er beliggende tæt på motorvej E20 - afkørsel 50, i veludbyttet erhvervsområde, med gode tilkørselsforhold. Der er gode parkeringsforhold på ejendommen. Pæne og velindrettede kontorlokaler, med attraktiv beliggenhed tæt på motorvejen. Lokalerne er placeret i ejendommens bagerste del, så de er meget ugenerte. Lejemålet vil være anvendeligt for alle typer kontor såsom salgskontor mv. med behov for hurtig adgang til motorvej mv. Lejemålet er indrettet med åbent kontorlandskab og 3 separate kontorer. Derudover gode personale faciliteter, i form at køkken med spiseplads og pæne toiletforhold.