Foto leveres af Google Street View og kan være upræcist:
    
Kontor til leje, Odense C, Torvegade
Torvegade, 5000 Odense C- Kontor til leje
 - 364 m2
 - 24.250 kr. per måned
 
            
                Torvegade, 5000 Odense C
                
            - Kontor til leje
 - 364 m2
 - 24.250 kr. per måned
 
            Kontakt udlejeren nu
            Du linkes til en anden portal, som evt. kan kræve betaling eller oprettelse
Kontor til leje, Odense C, Torvegade
Fakta
- 260256
 - Kontor
 - 364 m2
 - 291.000 kr.
 - 24.250 kr.
 - 799,45 kr.
 
                    KONTAKT UDLEJEREN NU
                    
            
        Du linkes til en anden portal, som evt. kan kræve betaling eller oprettelse
                Kontor til leje i 5000 Odense C
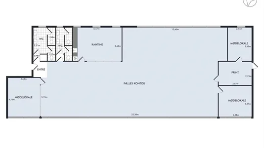
            Kontorlejemål med central beliggenhed i Odense.
På 3. sal i markant ejendom lige ved H.C. Andersen museet og Odense Letbane udlejes veldisponeret kontorlejemål. Lejemålet er beliggende på 3. sal i samme ejendom som Arbejdernes Landsbank. Lejemålet entreres enten via trappe eller via elevator.
Lejemålet indeholder to mødelokaler, åbent kontormiljø med mulighed for yderligere opdeling, 4 toiletter samt spisekøkken og arkivrum. Fra lejemålet er der adgang til ugeneret tagterrasse med udsigt til Fisketorvet og Overgadekvarteret.
Lejemålet er apteret med lyddæmpende systemlofter, god grundbelysning, kabling, ventilationsanlæg, tæppefliser på gulvet.
Lejemålet kan overtages efter nærmere aftale.
Sagsprospektet vil blive sendt til din mail, men du kan også se det med det samme på nedenstående link.
Tak for din henvendelse. Din besked vil blive behandlet hurtigst muligt.
Vi har noteret dine ønsker.
Vi kontakter dig, så snart der er en ejendom, som matcher dine kriterier.
Tak for din henvendelse.
Vi kontakter dig snarest muligt for at aftale dato og tidspunkt for vurderingen.
            
        
            På 3. sal i markant ejendom lige ved H.C. Andersen museet og Odense Letbane udlejes veldisponeret kontorlejemål. Lejemålet er beliggende på 3. sal i samme ejendom som Arbejdernes Landsbank. Lejemålet entreres enten via trappe eller via elevator.
Lejemålet indeholder to mødelokaler, åbent kontormiljø med mulighed for yderligere opdeling, 4 toiletter samt spisekøkken og arkivrum. Fra lejemålet er der adgang til ugeneret tagterrasse med udsigt til Fisketorvet og Overgadekvarteret.
Lejemålet er apteret med lyddæmpende systemlofter, god grundbelysning, kabling, ventilationsanlæg, tæppefliser på gulvet.
Lejemålet kan overtages efter nærmere aftale.
Tak for din interesse i ejendommen
Sagsprospektet vil blive sendt til din mail, men du kan også se det med det samme på nedenstående link.
Tak for din henvendelse. Din besked vil blive behandlet hurtigst muligt.
Få besked om nye ejendomme før andre
Tak for din tilmelding
Vi har noteret dine ønsker.
Vi kontakter dig, så snart der er en ejendom, som matcher dine kriterier.
Få en uvildig vurdering af din erhvervsejendom
Tak for din henvendelse.
Vi kontakter dig snarest muligt for at aftale dato og tidspunkt for vurderingen.
Information og data
Dette kontorlokale ligger på Torvegade i Odense C. Odense C har postnummeret 5000, og ligger i kommunen Odense, som ligger i Odense. Lokalet er i alt 364 m2. Lejepris: 291.000 kr. per år.