Foto leveres af Google Street View og kan være upræcist:
Kontor til leje, København K, Toldbodgade
Toldbodgade, 1000-1499 København K- Kontor til leje
- 185 m2

Toldbodgade, 1000-1499 København K
- Kontor til leje
- 185 m2
FÅ MERE INFO OM LOKALET
Du linkes til en anden portal, som evt. kan kræve betaling eller oprettelse
Kontor til leje, København K, Toldbodgade
PRO-UDLEJER
Læs mereFakta
- 299848
- Kontor
- Showroom
- 185 m2
- Ikke angivet
- 333.000 kr.
- 27.750 kr.
- 1.800 kr.
- 1
- 10 Pladser
- 15
FÅ MERE INFO OM LOKALET
Du linkes til en anden portal, som evt. kan kræve betaling eller oprettelse
Byens Bedste Baghus med rigtig kongelig nabo
Unikt kontorlejemål med atmosfære og suveræn beliggenhed - nabo til Amalienborg og overfor Amaliehaven og Operahuset.
Lejemålet ligger i en smuk, historisk ejendom, der tidligere husede Toldbod Dampmølle. Ejendommen er i dag gennemrenoveret og moderniseret med stor respekt for dens oprindelige arkitektur. Den står smukt med synlige, gamle bjælker og med alle moderne faciliteter. Ejendommen har fibernet fra TDC og Global Connect.
Beliggenhed:
500 m. fra Marmorkirkens Metro. 300 m til Kvæsthusmolens parkeringshus med 500 pladser.
Indretning:
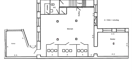
Lejemålet som ligger i baghuset er indrettet med 1 storrumskontor / samt 2 kontorer og 3 små mødelokaler/telefonrum, køkken og toilet. (se tegning)
5-20 arbejdspladser.
Ekstra faciliteter:
· Mulighed af at leje P-plads i gården.
· Ejendommen er forsynet med solcellestrøm fra eget solcelleanlæg som dækker ca. 50% af ejendommens strømforbrug
Lejemålet ligger i en smuk, historisk ejendom, der tidligere husede Toldbod Dampmølle. Ejendommen er i dag gennemrenoveret og moderniseret med stor respekt for dens oprindelige arkitektur. Den står smukt med synlige, gamle bjælker og med alle moderne faciliteter. Ejendommen har fibernet fra TDC og Global Connect.
Beliggenhed:
500 m. fra Marmorkirkens Metro. 300 m til Kvæsthusmolens parkeringshus med 500 pladser.
Indretning:
Lejemålet som ligger i baghuset er indrettet med 1 storrumskontor / samt 2 kontorer og 3 små mødelokaler/telefonrum, køkken og toilet. (se tegning)
5-20 arbejdspladser.
Ekstra faciliteter:
· Mulighed af at leje P-plads i gården.
· Ejendommen er forsynet med solcellestrøm fra eget solcelleanlæg som dækker ca. 50% af ejendommens strømforbrug
Information og data
Dette kontorlokale, som også kan anvendes til Showroom ligger på Toldbodgade i København K. København K har postnummeret 1253, og ligger i kommunen København, som ligger i København. Lokalet er i alt 185 m2. Der medfølger 1 parkeringspladser til ejendommen.