Foto leveres af Google Street View og kan være upræcist:
Kontor til leje, København K, Base Camp, Danneskiold-Samsøes Allé 28
Base Camp, Danneskiold-Samsøes Allé 28, 1000-1499 København K- Kontor til leje
- 800 m2
Base Camp, Danneskiold-Samsøes Allé 28, 1000-1499 København K
- Kontor til leje
- 800 m2
Kontakt udlejeren nu
Du linkes til en anden portal, som evt. kan kræve betaling eller oprettelse
Kontor til leje, København K, Base Camp, Danneskiold-Samsøes Allé 28
Fakta
- 250767
- Kontor
- Showroom
- Klinik
- 800 m2
- Ikke angivet
- 2.000 kr.
KONTAKT UDLEJEREN NU
Du linkes til en anden portal, som evt. kan kræve betaling eller oprettelse
Synlig ejendom midt mellem kanoner og kanaler på Holmen
I det kreative miljø på Holmen, blot 5 minutter gang fra Indre By, tilbydes 1. og 2. sal til kontor/showroom i flot nyrenoveret ejendom på Danneskiold-Samsøes Allé 28. Bygningen, der engang var "folkebygning" for forsvaret, er konverteret til lyse erhvervslokaler i grønne omgivelser. Lejemålet udlejes efter renovering og hvor ejendommen energioptimeres og ejendommens parterre åbnes op imod Danneskiold-Samsøes Allé med en glasfacade og åben terrasse.
Området
Base Camps beliggenhed i starten af Holmen – nærmere bestemt Arsenaløen, er omgivet af charmerende kanaler, grønne områder og har kort afstand til Kongens Nytorv og Christianshavn metrostation. Holmen er med sine mange historiske ejendomme og maritime miljø en populær oase for kreative virksomheder.
Holmen består af flere områder. Naboen Kuglegården har gennemgået en totalrenovering, og to nye ejendomme vil stå færdige fra primo 2025 og et par år frem. Frederiksholm, umiddelbart nord for Arsenaløen, består primært af boligbyggeri. Christiansholm/Papirøen imod Inderhavnen udvikles i disse år som et stort projekt med kulturelle tilbud, boliger og erhverv. I 2023 stod den nye grønne operapark med underjordisk parkeringsanlæg klar.
Holmen er meget let tilgængelig via Inderhavnsbroen til Nyhavn, og via Danneskiold-Samsøes Allé til Christianshavn eller Kgs. Nytorv, hvor metrostationerne kan nås på en 10 minutters gåtur. Desuden går bussen lige til døren, og p-pladser kan tillejes på området.
Ejendommen
Lejemålet befinder sig i en af forsvarets tidligere områder 'Base Camp'. Lejemålet har facade ud mod Danneskiold-Samsøes Allé og blev opført i 1959 i gedigne materiale til brug for forsvarets mange aktiviteter på Holmen. Efter overdragelse til civil brug, har ejendommen tjent forskellige formål, senest blandt andet som kreativ tegnestue og kontor for et arkitektfirma. Naboer til ejendommen er bl.a. lokalt grønt sportsanlæg og designvirksomhederne i Kuglegården.
Lejemålet
Lejemålet står over for en renovering og åbning af parterre og får tilføjet en udvendig elevator.
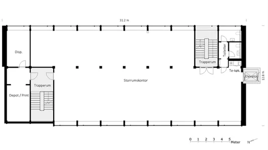
Lejemålet henvender sig til virksomheder, der ønsker en enestående placering midt i København i en sjælden udbudt ejendom. Det er egnet til kontor/showroom. Ejendommens parterre og stueetage er udlejet. 1. og 2. sal er fortsat ledige. De kan lejes hver for sig (398 m² og 402 m²) eller samlet 800 m².
1. sal (398 m²) og 2. sal (402 m²) er indrettet med åbne kontormiljøer og aflukkede møderum. Her er udsigt til Kuglegården, Operaen og områdets skønne grønne områder.
Området
Base Camps beliggenhed i starten af Holmen – nærmere bestemt Arsenaløen, er omgivet af charmerende kanaler, grønne områder og har kort afstand til Kongens Nytorv og Christianshavn metrostation. Holmen er med sine mange historiske ejendomme og maritime miljø en populær oase for kreative virksomheder.
Holmen består af flere områder. Naboen Kuglegården har gennemgået en totalrenovering, og to nye ejendomme vil stå færdige fra primo 2025 og et par år frem. Frederiksholm, umiddelbart nord for Arsenaløen, består primært af boligbyggeri. Christiansholm/Papirøen imod Inderhavnen udvikles i disse år som et stort projekt med kulturelle tilbud, boliger og erhverv. I 2023 stod den nye grønne operapark med underjordisk parkeringsanlæg klar.
Holmen er meget let tilgængelig via Inderhavnsbroen til Nyhavn, og via Danneskiold-Samsøes Allé til Christianshavn eller Kgs. Nytorv, hvor metrostationerne kan nås på en 10 minutters gåtur. Desuden går bussen lige til døren, og p-pladser kan tillejes på området.
Ejendommen
Lejemålet befinder sig i en af forsvarets tidligere områder 'Base Camp'. Lejemålet har facade ud mod Danneskiold-Samsøes Allé og blev opført i 1959 i gedigne materiale til brug for forsvarets mange aktiviteter på Holmen. Efter overdragelse til civil brug, har ejendommen tjent forskellige formål, senest blandt andet som kreativ tegnestue og kontor for et arkitektfirma. Naboer til ejendommen er bl.a. lokalt grønt sportsanlæg og designvirksomhederne i Kuglegården.
Lejemålet
Lejemålet står over for en renovering og åbning af parterre og får tilføjet en udvendig elevator.
Lejemålet henvender sig til virksomheder, der ønsker en enestående placering midt i København i en sjælden udbudt ejendom. Det er egnet til kontor/showroom. Ejendommens parterre og stueetage er udlejet. 1. og 2. sal er fortsat ledige. De kan lejes hver for sig (398 m² og 402 m²) eller samlet 800 m².
1. sal (398 m²) og 2. sal (402 m²) er indrettet med åbne kontormiljøer og aflukkede møderum. Her er udsigt til Kuglegården, Operaen og områdets skønne grønne områder.
Information og data
Dette kontorlokale, som også kan anvendes til Showroom eller Klinik, ligger på Base Camp, Danneskiold-Samsøes Allé i København K. København K har postnummeret 1434, og ligger i kommunen København, som ligger i København. Lokalet er i alt 800 m2.