Foto leveres af Google Street View og kan være upræcist:
Kontor til leje, Århus N, Jens Baggesens Vej 90A
Jens Baggesens Vej 90A, 8200 Århus N- Kontor til leje
- 360 m2

Jens Baggesens Vej 90A, 8200 Århus N
- Kontor til leje
- 360 m2
FÅ MERE INFO OM LOKALET
Du linkes til en anden portal, som evt. kan kræve betaling eller oprettelse
Kontor til leje, Århus N, Jens Baggesens Vej 90A
Fakta
- 300179
- Kontor
- Klinik
- 360 m2
- Ikke angivet
- 1.155 kr.
FÅ MERE INFO OM LOKALET
Du linkes til en anden portal, som evt. kan kræve betaling eller oprettelse
Charmerende kontor med højt til loftet i Ringgade Centret
Byggeselskab Mogens de Linde kan nu præsentere et charmerende og højloftet kontorlejemål i Ringgade Centret beliggende på Jens Baggesens Vej, Aarhus N. Ringgade Centret er en samling af bygninger som tidligere har fungeret som produktionshal og administration for de Forenede Mejerier i årene 1955-1958. I dag produceres der ikke længere mælk på adressen, men bygningerne danner i stedet hjemsted for en lang række andre typer af erhverv, såsom kiropraktisk klinik, speciallægepraksis, fitness samt andre liberale erhverv.
Området
Ringgade Centret er særdeles centralt placeret ved Aarhus’ mest befærdede færdselsåre, Vestre Ringgade, som udgør en del af det centrale indre ringgadesystem omkring Aarhus bymidte. Mere end 30.000 biler passerer dagligt Ringgade Centret. Ejendommen er beliggende i et erhvervs- og kulturelt orienteret byområde, der rummer erhvervsvirksomheder, Storcenter Nord, Aarhus Universitet, Handelshøjskolen og Forskerparken foruden privat beboelse. Parkeringspladser kan tillejes lejemålet, alle med adgang fra Jens Baggesens Vej og Hangøvej. Fra lejemålet er der kort afstand til bymidten og let adgang til alle udfaldsvejene samt motorveje, ligesom der er bybusforbindelser og letbane indenfor gåafstand.
Ejendommen
Ringgade Centret er opført som fem forskellige bygningsafsnit, der alle er placeret i facadelinjen mod Ringgaden. I arkitektonisk henseende fremtræder de som en harmonisk helhed med ens facadefarve. Bygningerne er opmuret i gode danske teglsten, ligesom byggeriet iøvrigt er udført under anvendelse af sunde, naturlige materialer. Parkeringsarealer er placeret langs bygningernes anden facade mod Jens Baggesens Vej, hvor der i øjeblikket opføres en spritny parkeringskælder samt boliglejemål.
Lejemålet
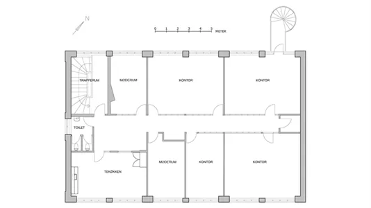
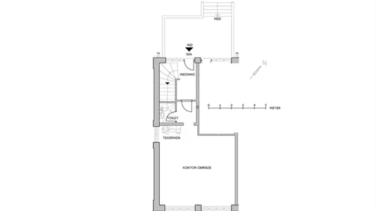
Med præsentabelt indgangsparti bydes ny lejer velkommen i det 360 m² højloftede kontorlejemål, hvor bl.a. et gammelt charmerende vindue og genbrugstømmer er med til at pryde omgivelserne. Lejemålet er inddelt i to etager, henholdsvis 73 m² og 287 m² på øverste plan. Indvendigt byder lejemålet på flere kontorer i forskellige størrelser, møderum, tekøkken samt toiletfaciliteter. Fælles for alle er massive egetrægulve, en fantastisk lofthøjde og store vinduespartier som sikrer et naturligt lysindfald.
Lejemålet overtages ny istandsat efter nærmere aftale.
Området
Ringgade Centret er særdeles centralt placeret ved Aarhus’ mest befærdede færdselsåre, Vestre Ringgade, som udgør en del af det centrale indre ringgadesystem omkring Aarhus bymidte. Mere end 30.000 biler passerer dagligt Ringgade Centret. Ejendommen er beliggende i et erhvervs- og kulturelt orienteret byområde, der rummer erhvervsvirksomheder, Storcenter Nord, Aarhus Universitet, Handelshøjskolen og Forskerparken foruden privat beboelse. Parkeringspladser kan tillejes lejemålet, alle med adgang fra Jens Baggesens Vej og Hangøvej. Fra lejemålet er der kort afstand til bymidten og let adgang til alle udfaldsvejene samt motorveje, ligesom der er bybusforbindelser og letbane indenfor gåafstand.
Ejendommen
Ringgade Centret er opført som fem forskellige bygningsafsnit, der alle er placeret i facadelinjen mod Ringgaden. I arkitektonisk henseende fremtræder de som en harmonisk helhed med ens facadefarve. Bygningerne er opmuret i gode danske teglsten, ligesom byggeriet iøvrigt er udført under anvendelse af sunde, naturlige materialer. Parkeringsarealer er placeret langs bygningernes anden facade mod Jens Baggesens Vej, hvor der i øjeblikket opføres en spritny parkeringskælder samt boliglejemål.
Lejemålet
Med præsentabelt indgangsparti bydes ny lejer velkommen i det 360 m² højloftede kontorlejemål, hvor bl.a. et gammelt charmerende vindue og genbrugstømmer er med til at pryde omgivelserne. Lejemålet er inddelt i to etager, henholdsvis 73 m² og 287 m² på øverste plan. Indvendigt byder lejemålet på flere kontorer i forskellige størrelser, møderum, tekøkken samt toiletfaciliteter. Fælles for alle er massive egetrægulve, en fantastisk lofthøjde og store vinduespartier som sikrer et naturligt lysindfald.
Lejemålet overtages ny istandsat efter nærmere aftale.
Information og data
Dette kontorlokale, som også kan anvendes til Klinik ligger på Jens Baggesens Vej i Århus N. Århus N har postnummeret 8200, og ligger i kommunen Aarhus, som ligger i Århus. Lokalet er i alt 360 m2.