Foto leveres af Google Street View og kan være upræcist:

Kontor til leje, Århus C, Se vej-navn[xxxxxxxxxx]

Se vej-navn[xxxxxxxxxx], 8000 Århus C
  • Kontor til leje
  • Ca. 585 m2
Kontor til leje, Århus C, <span class="blurred street" onclick="ProcessAdRequest(307656)"><span class="hint">Se vej-navn</span>[xxxxxxxxxx]</span>
Se vej-navn[xxxxxxxxxx], 8000 Århus C
  • Kontor til leje
  • Ca. 585 m2
Få mere info
Du linkes til en anden portal, som evt. kan kræve betaling eller oprettelse

Kontor til leje, Århus C, Se vej-navn[xxxxxxxxxx]

Fakta

  • 307656
  • Kontor
  • Ca. 585 m2
  • Ikke angivet
  • Ca. 1.500 kr.

STENBROEN - Musik, kunst og kultur

Lejemål til teater, restaurant, spillested, kultur, idræt eller lignende – Arkitektskolens tidl. “Modelværksted” fremstår højloftet, lyst og rummelige i et industrielt look og består af et stort åbent rum med store ovenlysvinduer mod Kaløgade, samt en række mindre rum der ligger i direkte forbindelse til det store rum. Nogle af de mindre rum ligger med vinduer/udgang mod det bagvedliggende gårdrum. Endvidere er der adgang til fælles køkken- og toiletfaciliteter i lejemålet. Her gives mulighed for udlejning uden moms i ejendommen. Ejendommene Kaløgade 5-7 ligger attraktivt placeret i Nørre Stenbro Kvarteret. Bygningerne kommer til at danne rammerne for ønsket om at skabe nyt byliv i Nørre Stenbro Kvarteret – med café, musik, teater, dans, kunst, koncerter og meget mere. Her skabes et sted, hvor der er plads til at samle musik, kunst og kultur. Et kreativt, levende sted med plads til både store og små aktører – fra den udøvende kunstner til alle dem, der arbejder for, sammen med og rundt om. Ejendommene rummer muligheder for stor diversitet i både størrelse og anvendelse. Dette understøtter ønsket – og drømmen er at skabe et sted, hvor vækstlaget inden for kulturen smeltes sammen, med den mere etablerede del af branchen og de på den måde, kan drage nytte af hinanden. Som lejer i STENBROEN bliver man del af et nyt og nyskabende centrum for musik-, kunst-, film- og teaterkulturen i Aarhus – i inspirerende rammer. Ejendommene kommer til at rumme alt fra små øvelokaler, musikbutik og undervisning til helt traditionelle kontorlokaler – men fælles for lejerne vil være deres tilknytning til kulturbranchen. Vi ønsker at give mulighed for en sammensætning af lejere, der sammen kan skabe et community, hvor man føler sig motiveret og inspireret. Ønsker du at høre mere om mulighederne for leje af lokaler i ejendommene eller om området generelt, kan du kontakte os på tlf. [xxxxx]eller e-mail:

Information og data

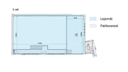
Dette kontorlokale ligger på Kaløgade i Århus C. Århus C har postnummeret 8000, og ligger i kommunen Aarhus, som ligger i Århus. Lokalet er i alt 583 m2.


Markedsindsigt: Denne ejendom er identificeret via vores realtids-overvågning af ejendomsmarkedet. Vi samler udbuddet fra hele landet i dit dashboard – herunder muligheder, der ikke altid er synlige på traditionelle portaler. Reagér straks på friske data før konkurrenterne.